Abrahamic Sacred Architecture – 2023 Student Projects

Below are examples of several of my students’ design projects from ARC 4110 – Architecture Design Studio V which was taught at Utah Valley University during the Fall 2023 semester. The focus of the project centered around designing a sacred space in one of the Abrahamic faith traditions. To learn more about the design brief and class, visit the link below:


JUDAISM

Beit HaKnesset HaSela: The Sacred Gem of the Wasatch Mountains
Jake Wendt

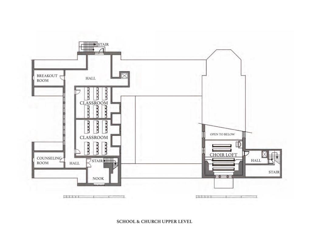
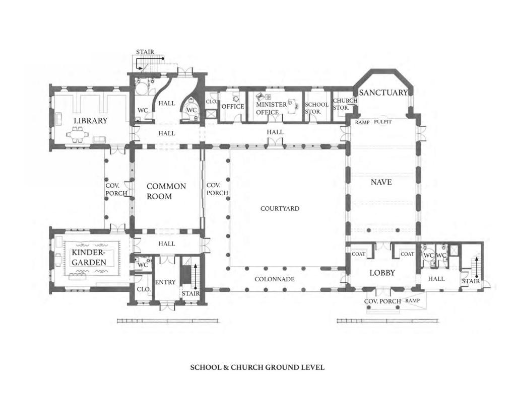
CHRISTIANITY

Evangelische Reformierte Kirche: Swiss Reformation in Midway, Utah
Samuel Weisler

Shepherd’s Gate Cathedral: Sanctuary of Peace and Purpose
Nathaniel Stucki

Temple of Our Divine Journey: Progression to God
Jared Bradshaw

ISLAM

Almasjid Ealaa Altali: The Mosque on the Hill
Barrett Blake