Below are examples of several of my students’ design projects from ARC 3210 – Architecture Design Studio IV which was taught at Utah Valley University during the Spring 2020 semester. The focus of the studio dealt with issues of architectural programming and context.
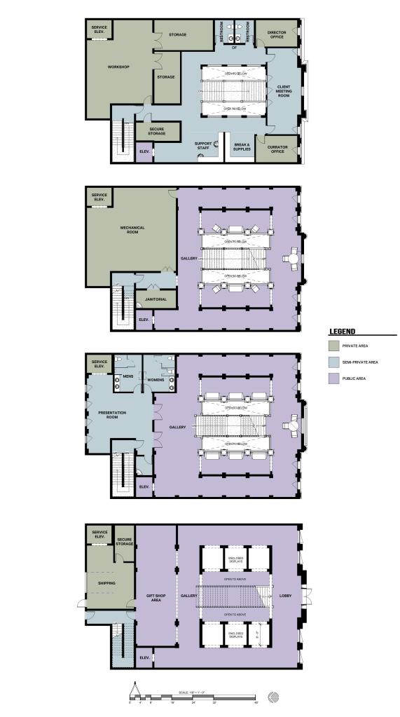
The Museum of Antiquities is a 17,000 square foot building designed to house a private collection of rare books and artifacts. The museum is placed in an infill site between two historic buildings in downtown Provo, Utah. Local precedents and the classical language was used to create a structure that blended into the historic context. To learn more about the design brief and class, visit the link below:




















































