Below are examples of several of student design projects from ARC 3110 – Architecture Design Studio III which was taught at Utah Valley University during the Fall 2021 semester. The focus of the project centered around designing a new hotel and restaurant on the Grand Canal in Venice, Italy.
To learn more about the design brief and class, visit the link below:
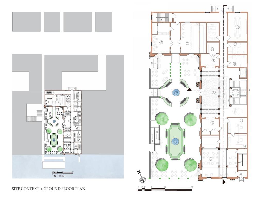
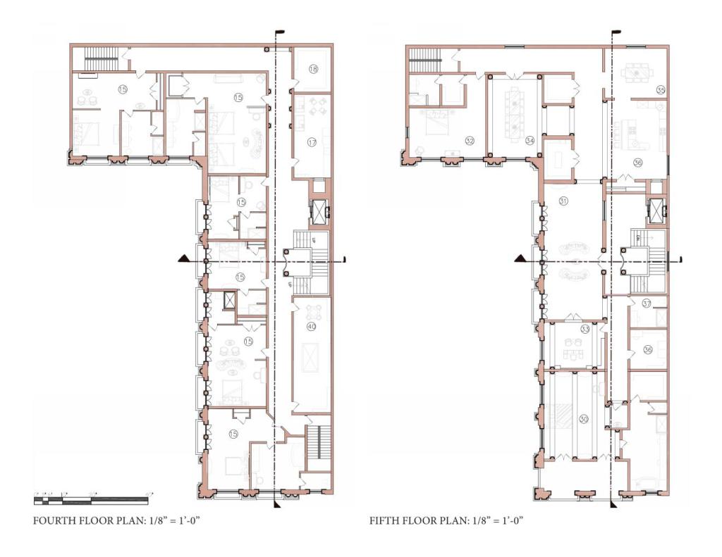
Keegan Borman & Taylor Cherrington
The Venice Hotel is a 18,000 square foot structure situated on the Grand Canal in Venice, Italy next to the historic Ca’ d’ Oro and Palazzo Morosini Sagredo. The multi-story high-end boutique hotel also features an award-winning restaurant, bar, café, gelato shop, and penthouse. The design proposal seeks to be respectful of the rich historical context by using the classical language of architecture.
Jacob Harris & Jayne Lee
The Leone Hotel is a 18,000 square foot structure situated on the Grand Canal in Venice, Italy next to the historic Ca’ d’ Oro and Palazzo Morosini Sagredo. The multi-story high-end boutique hotel also features an award-winning restaurant, bar, café, gelato shop, and penthouse. The design proposal seeks to be respectful of the rich historical context by using the classical language of architecture.
Madison Rosser & Benjamin Varnell
The Palazzo Giallo Hotel is a 18,000 square foot structure situated on the Grand Canal in Venice, Italy next to the historic Ca’ d’ Oro and Palazzo Morosini Sagredo. The multi-story high-end boutique hotel also features an award-winning restaurant, bar, café, gelato shop, and penthouse. The design proposal seeks to be respectful of the rich historical context by using the classical language of architecture.




















