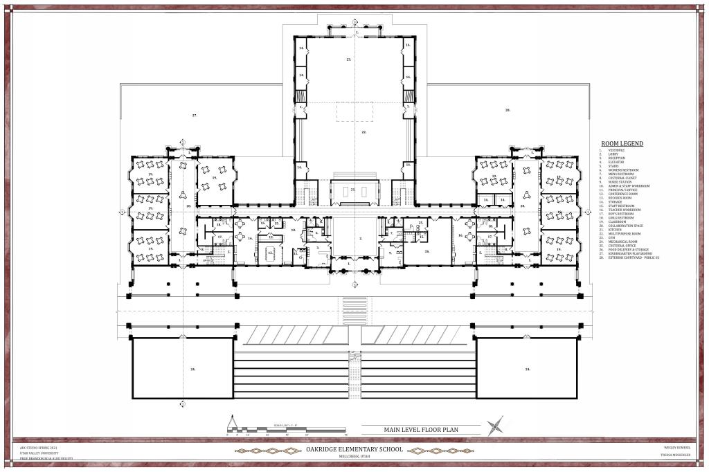
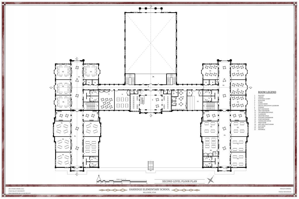
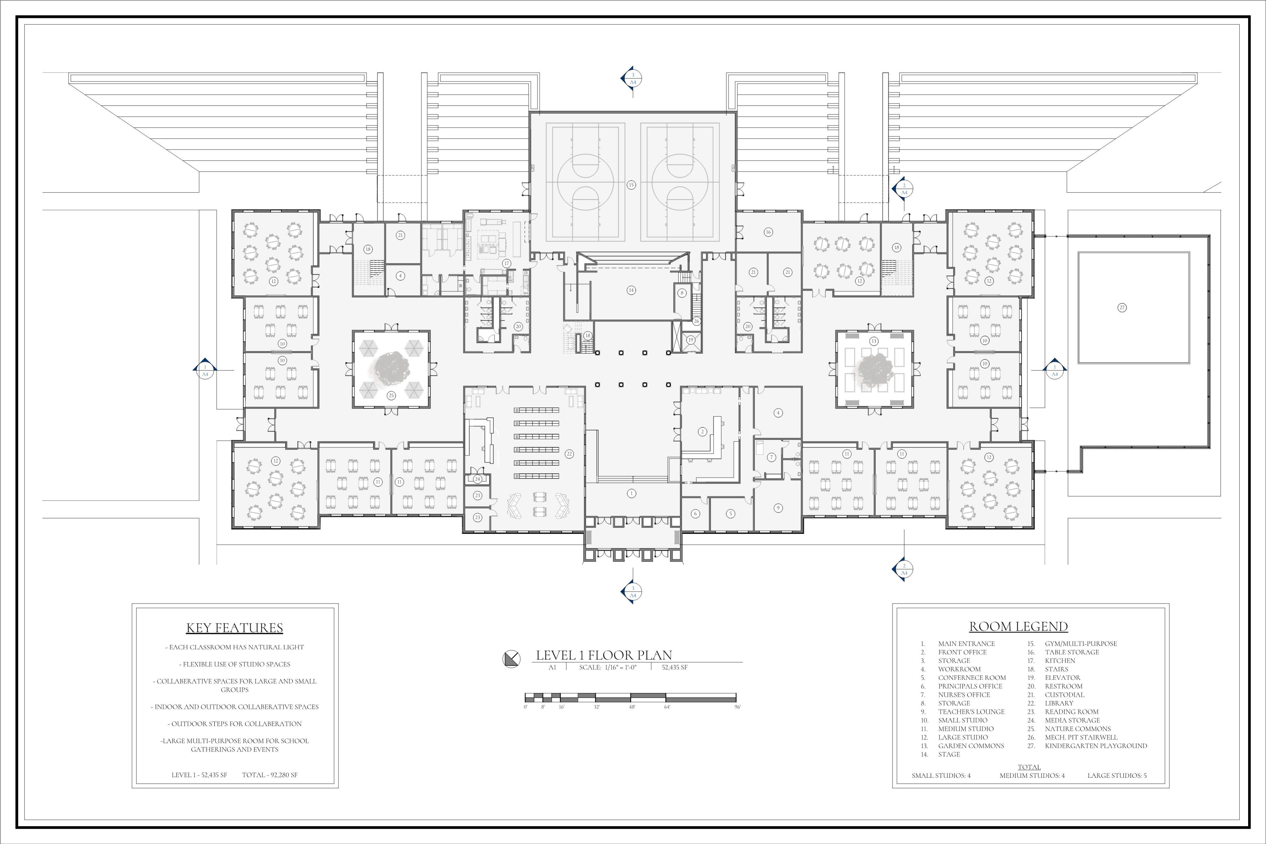
Below are examples of several of my students’ design projects from ARC 4210 – Architecture Design Studio VI which was co-taught with Aliki Milioti at Utah Valley University during the Spring 2021 semester. As the second of three comprehensive integrated studios at UVU, students were tasked with designing a new 75,000 square foot elementary school to accommodate 420 students in the Granite school district. The site in the Olympus Cove area includes challenging topography but offers magnificent views of the Salt Lake valley. As a 21st-century school environment, students were asked to address a wide variety of educational, social, recreational, environmental, and community needs. Each project was tasked with providing a child-scaled environment, flexible classrooms, security, community engagement, and learning opportunities beyond the classroom. This design studio also included the integration of mechanical, structural, life safety, and building envelope systems.















































