Classical Architecture Workshop: Student Work

Below are examples of student work who participated in the Classical Architecture Workshop at Utah Valley University during the Spring 2020, Fall 2020, Spring 2021 semesters. To learn more about the assignments or the class, visit the link below:

ARC 1010 – Classical Architecture Workshop

ANALYSIS + DRAWING

Archetypal Geometry

Classical Moldings

Measured Drawing

Ornament Analysis

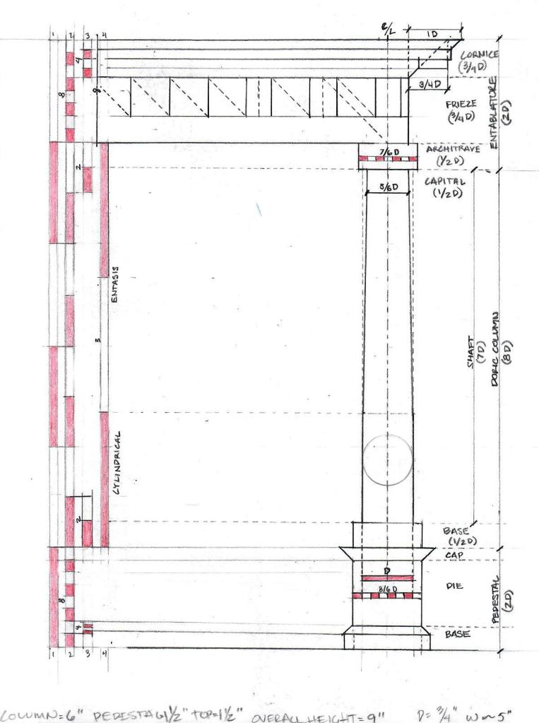
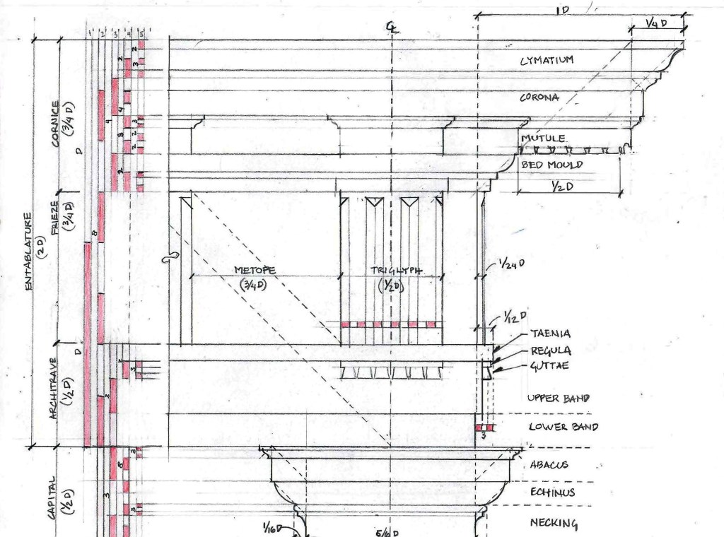
Doric Classical Order

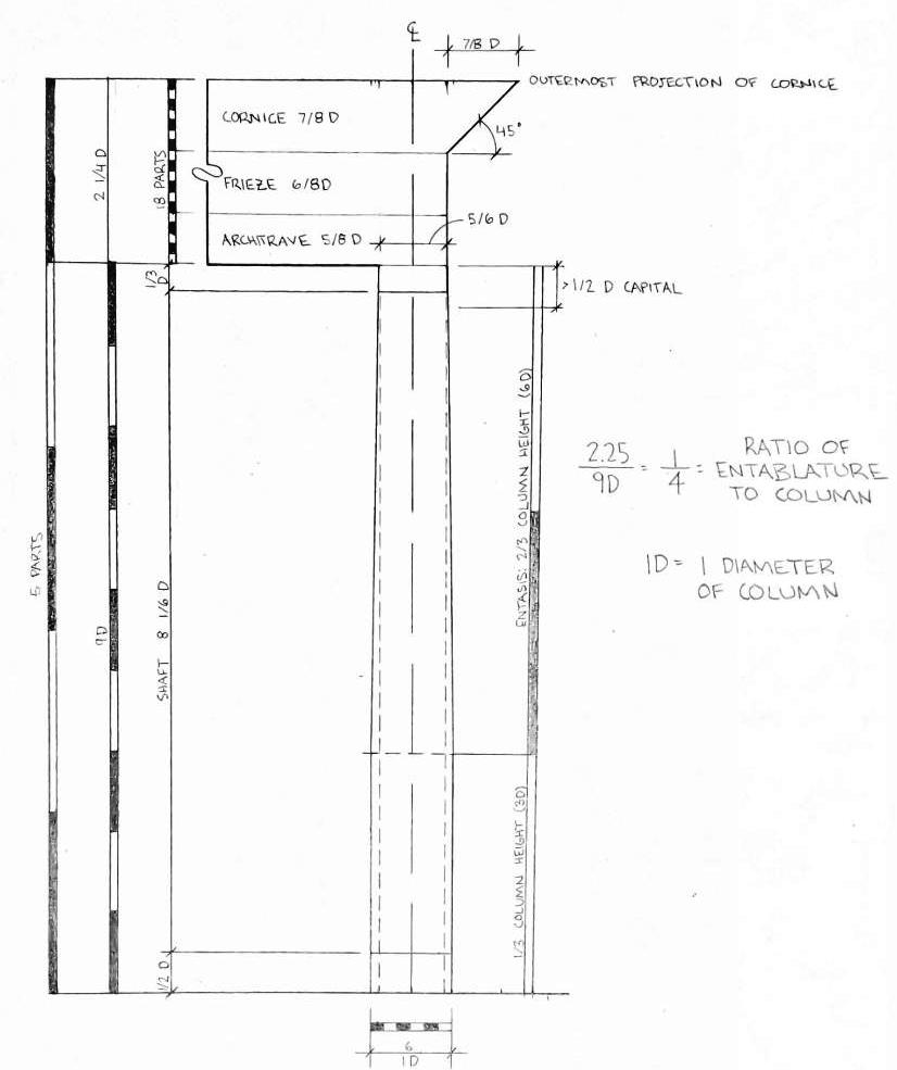
Ionic Classical Order

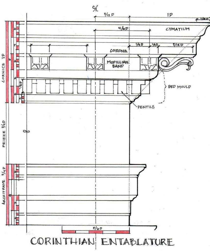
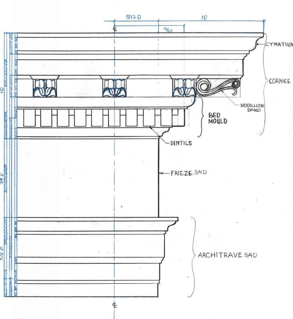
Corinthian Classical Order

DESIGN PROBLEMS

Doric Entry Gate

Ionic Lakeside Pavillion

Corinthian Monument to the Family

Corinthian Monument to the Family – Analytique