Below are examples of several of my students’ design projects from ARC 3210 – Architecture Design Studio IV which was taught at Utah Valley University during the Spring 2020 and Spring 2022 semesters. The focus of the project centered around designing a new library and city office building for the city of Spanish Fork, Utah. To learn more about the design brief and class, visit the link below:
https://brandonro.com/2020/01/07/arc-3210-architecture-design-studio/
Tressa Messenger & Riley Winter
The Library for the 21st Century is a proposal for a new 45,000 square foot city administration and public library building for the city of Spanish Fork, Utah. Central to our project was the desire to create a place to learn, gather, and inspire by providing a courtyard and balconies to engage patrons. The parti provides ample natural light and is inspired by collegiate Gothic precedents.
Lindsey Barker & Derek Stevens
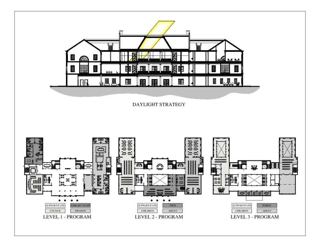
The Library for the 21st Century is a proposal for a new 45,000 square foot city administration and public library building for the city of Spanish Fork, Utah. Our design uses the classical language to communicate to visitors that the ground floor with its rusticated base serves primarily civic functions for the city while the upper two floors pertain to the library. Our interior features a grand reading room and is largely influenced by the work of Henri Labrouste.
Hunter Huffman
The Library for the 21st Century is a proposal for a new 45,000 square foot city administration and public library building for the city of Spanish Fork, Utah. This proposal seeks to create a timeless place for timeless memories by incorporating classical Victorian design elements into the new proposal. The main massing and exterior materials take into account the use of local materials and the clock tower on the corner becomes a new urban anchor for the community.
Ian Hargrave
The Library for the 21st Century is a proposal for a new 45,000 square foot city administration and public library building for the city of Spanish Fork, Utah. This project seeks to unify the past, present, and future by building off of Romanesque style precedents found in the historic downtown of the city such as the adjacent Thurber School. Major library and city administration program elements were separated by a common courtyard.
Zach Haws
The Library for the 21st Century is a proposal for a new 45,000 square foot city administration and public library building for the city of Spanish Fork, Utah. In an effort to respect the rich history of the city’s past, the overall massing of the project was kept simple. The design was focused on longevity, durability, openness, and functional.
Benjamin Varnell
The Library for the 21st Century is a proposal for a new 45,000 square foot city administration and public library building for the city of Spanish Fork, Utah. This project seeks to unify the past, present, and future by building off architectural precedents found in the historic downtown of the city such as the adjacent Thurber School. The project seeks to create a civic campus that responds to the prominent downtown location across from a major city park.
Zachary Cooper
The Library for the 21st Century is a proposal for a new 45,000 square foot city administration and public library building for the city of Spanish Fork, Utah. This project seeks to unify the past, present, and future by building off architectural precedents found in the historic downtown of the city such as the adjacent Thurber School. The project seeks to create a civic campus that responds to the prominent downtown location across from a major city park.






































